Novogradnja Niš +381 18 41 51 488
← Nazad

Stan u okviru projekta 'Novogradnja u blizini "Roda" tržnog centra'

Durlan

Opis

Stambeno-poslovni objekat spratnosti Po+ P+4 projektovan je sa posebnim akcentom na porodični život, funkcionalnost i dugoročni kvalitet gradnje. Izgradnja se vrši po svim savremenim standardima, uz pažljivo birane materijale koji obezbeđuju udobnost i sigurnost za sve članove domaćinstva.

Spoljašnja PVC stolarija sa roletnama i elektropodizačima omogućava odličnu termo i zvučnu izolaciju, dok sigurnosna ulazna vrata i unutrašnja stolarija od medijapana dodatno doprinose osećaju bezbednosti. Podovi su obloženi troslojnim tarket parketom, pogodnim za svakodnevni porodični život, dok su u kuhinji i kupatilima postavljene keramičke pločice velikog formata, prve klase. Objekat poseduje spoljašnju termo-izolaciju debljine 10 cm, kao i zvučnu izolaciju između stanova i na podovima, što obezbeđuje mir i privatnost, naročito važno za porodice sa decom. Grejanje je etažno, sa električnim kotlom i ugrađenim grejnim telima, uz mogućnost individualne kontrole potrošnje. Lokacija objekta je pogodna za porodični život — u mirnom okruženju, sa lakim pristupom svim svakodnevnim sadržajima. U neposrednoj blizini nalaze se škola, vrtić, prodavnice i drugi neophodni sadržaji, dok su saobraćajne veze dobro povezane sa ostalim delovima grada, omogućavajući brzu i jednostavnu organizaciju porodičnih obaveza.

Svakom stanu pripada ostava u podrumu zgrade, idealna za odlaganje dečje opreme, kolica ili sezonskih stvari. u ponudi su jednoiposobni i dvoiposobni stanovi površiene od 47-64 m2. Parking mesto se kupuje zasebno. Moguća je kupovina putem stambenog kredita, a kupci prvog stana ostvaruju pravo na povraćaj PDV-a, što ovu nekretninu čini odličnim izborom za trajno rešavanje stambenog pitanja. Planirani rok završetka radova je septembar 2027. godine.

Cena: 253.000,00 €
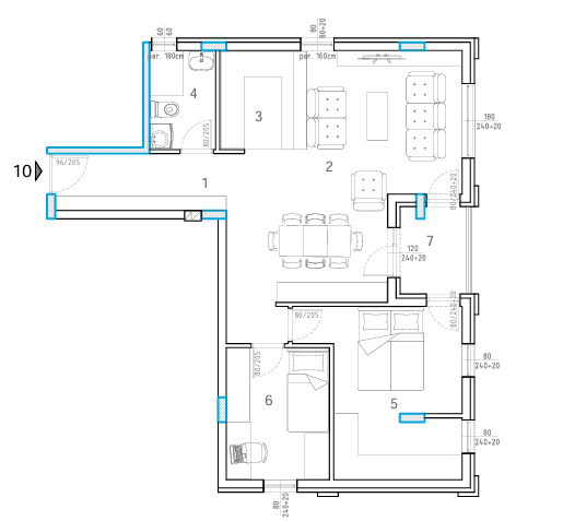
Kvadratura: 115,00m2 (ukupna), 115,00m2 (uknjižena)
Struktura: Četvorosoban
Broj kupatila: 2, broj terasa: 2
Jedinice:
  • Sprat: 2, br.stana: 10 cena:253.000,00 €